Ideen werden greifbar
Ideen werden greifbar

Projekte

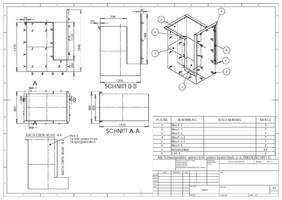
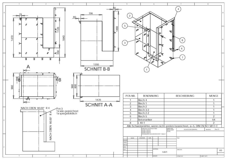
Stahlbühne für Klimageräte
Pumpensumpf aus Edelstahl
Treppenturm Konstruktion eines Treppenturmes bei dem die Treppenläufe gleichzeitig die Podeste bilden
3D-Visualisierung Treppenturm
In diesem 3D-pdf-Dokument können Sie sich die Konstruktion von allen Seiten betrachten, zoomen, drehen - ganz wie Sie möchten.
Treppenturm-3D.PDF
PDF Datei [1.7 MB]
Rohrbrücke Stahlbaukonstruktion zur Unterstützung von Abgasrohrleitungen
3D-Visualisierung Rohrbrücke
In diesem 3D-pdf-Dokument können Sie sich die Konstruktion von allen Seiten betrachten, zoomen, drehen - ganz wie Sie möchten.
Rohrbrücke_3D.PDF
PDF Datei [576.9 KB]
Aufzugsschacht Stahlbaukonstruktion eines Schachtes für Aufzug und Vorraum
3D-Visualisierung Aufzugsschacht
In diesem 3D-pdf-Dokument können Sie sich die Konstruktion von allen Seiten betrachten, zoomen, drehen - ganz wie Sie möchten.
Aufzugschacht_3D.pdf
PDF-Dokument [2.9 MB]

Konstruktion einer über Spindeln verstellbaren H-Traverse zum Heben von Fertighaus-Teilen

Plattengreifer als Anbaugerät zum Stapler oder Hubwagen. Über Spindelverstellung ist die Anpassung an verschiedene Plattengrößen möglich.

Konstruktion eines Schwenkkranes zum Einsatz auf Schiffen, Kranausleger mit zusätzlichem Gelenk und Arretierung in Parkposition

Konstruktion und Detaillierung einer Stahlbau-Dachbühne zur Aufnahme mehrerer Klimageräte in der Chemie, ca. 9 to Gesamtgewicht

 

Konstruktion und Detaillierung verschiedener Stahlbau-Dachbühnen zur Aufnahme von Geräten oder zur Dachquerung

 

Konstruktion und Detaillierung einer Dach-Sanierungsmaßnahme incl. Dachöffnung zur Einbringung von Maschinen und Anlagen

 

Konstruktion einer Aufgabe- und Dosiervorrichtung auf eine Rüttel-Sortieranlage in der Chemie

 

Konstruktion einer Positionier-Maschine zur Fehlersuche in Kunstoff-Blöcken, bis 800 kg

 

Konstruktion einer Aufgabe- und Dosiereinrichtung in der Pharmaindustrie (Reinraum)

 

Konstruktion und Auslegung von Heiz- oder Kühlummantelungen für Behälter in der Chemie

 

Konstruktion von Maschinenbaugruppen für hochpräzise Fräsmaschinen

 

Konstruktion und Detaillierung von Späneförderern für Fräsmaschinen

 

Konstruktion und Detaillierung von Schweltrommeln für die Müllverschwelung

 

Konstruktion und Dataillierung von Wärmetauschern für den Einsatz in Rauchgas oder Kondensat

 

Entwicklung und Konstruktion eines 30 m langen Kratzbodens für die Spanentsorgung in der Holzindustrie

 

Entwicklung von Positioniertischen für die Fertigung von Schweissbaugruppen

 

Konstruktion von Schuren als Verbindungselemente zwischen mehreren Ölmühlen innerhalb einer Produktionsstrasse

 

Konstruktion und Auslegung von Luftkanälen zur Verrohrung eines Wärmetauschers in der chemischen Industrie

 

Entwicklung, Konstruktion und Detaillierung eines Massenschwerpunkt-Positionierers für die Schweisstechnik (1000 kg Tragkraft)

Hier finden Sie uns

Konstruktions- und Zeichenbüro

Capraro e.K.

Stadtring 3a
03042 Cottbus

Rufen Sie uns einfach an unter:

+49 355 86950010

oder nutzen Sie unser Kontaktformular

Druckversion | Sitemap
© Konstruktions- und Zeichenbüro Capraro

Anrufen

E-Mail

Anfahrt